最终俘获购房者“芳心”的,终究还要有一流的品质及产品力,于今年入市的全新项目中国电建国宾华曦府,就是最好的佐证。
中国电建国宾华曦府的房源认购套数稳居金牛区第一,且单看小高层这一产bw必威西汉姆联官网品形态,在整个主城区范围内也稳居TOP5。
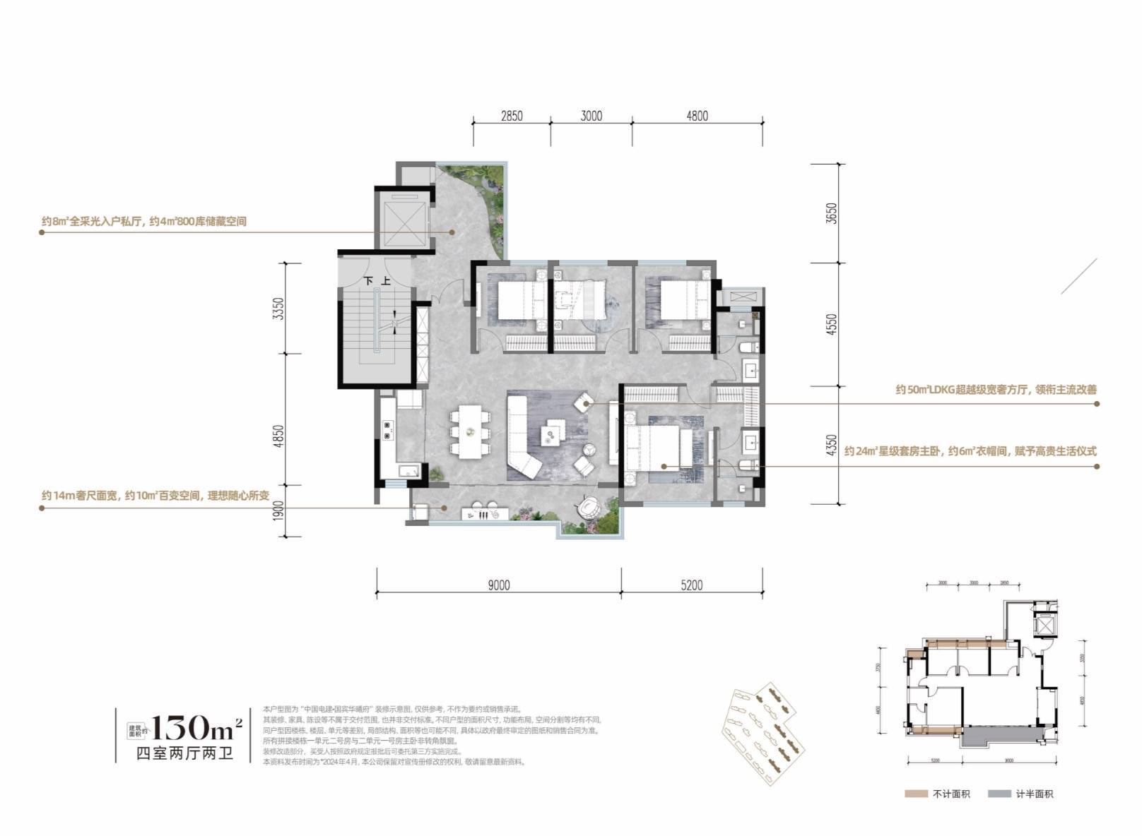
【bw必威西汉姆联官网w.hd-gz.com/ target=_blank>bw必威西汉姆联官网电建国宾华曦府】西三环·成外旁·百亩低密洋房社区,建面约110-143㎡国宾板块臻品大宅
中国电建集团作为国务院国资委直属央企,是全球清洁能源建设领军企业。旗下电建地产具备国家一级开发资质,位列16家央企地产开发平台。
【交通】两横三纵路网+4条地铁线号线所三甲医院环绕,四川省第五人民医院(2026年建成)
温馨提示:绝不收取任何费用,请提前1小时预约看房,以免带来不好的看房体验
平台声明:该文观点仅代表作者本人,搜狐号系信息发bw必威西汉姆联官网布平台,搜狐仅bw必威西汉姆联官网提供信息存储空间服务。



